Maison 3 chambres avec jardin dans un nouveau quartierA vendre

Maison Tournai templeuve

290 000€

En quelques mots

Franco Belge, maison 3 chambres avec jardin dans un nouveau quartier au cœur de Templeuve. Prestations- Agencement (RDC) : hall d`entrée avec WC séparé avec lave-mains, séjour avec cuisine équipée ouverte (7.000 € HTVA), cellier, coin buanderie- Agencement (étage) : 3 chambres, salle de bain avec baignoire, douche 120 x 90 cm, meuble vasque, miroir et WC- Espaces extérieurs : [..]

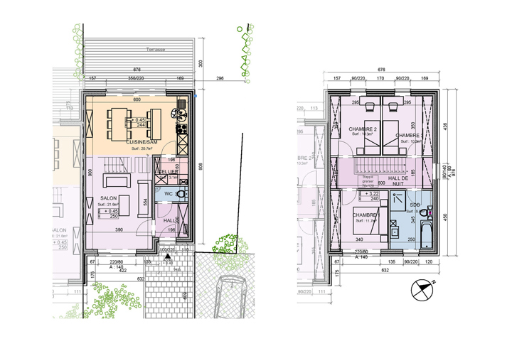
Franco Belge, maison 3 chambres avec jardin dans un nouveau quartier au cœur de Templeuve.

Prestations
- Agencement
(RDC) : hall d`entrée avec WC séparé avec lave-mains, séjour avec cuisine équipée ouverte (7.000 € HTVA), cellier, coin buanderie
- Agencement (étage) : 3 chambres, salle de bain avec baignoire, douche 120 x 90 cm, meuble vasque, miroir et WC
- Espaces extérieurs : jardin, terrasse et clôtures
- Confort et commodités : place de parking, citerne de récupération d’eau de pluie de 10.000 litres

Finitions
- Menuiseries
: châssis PVC gris anthracite double vitrage, portes intérieures prêtes à peindre, seuils en pierre bleue, escalier en rubberwood
- Chauffage : chauffage central au gaz de ville, chaudière de marque Buderus, radiateurs
- Ventilation : VMC simple flux de type C+
- Revêtements de sol : carrelage au choix avec plinthes assorties pour le rez-de-chaussée et la salle de bain et le hall de nuit à l’étage d`une valeur de 35€/m² HTVA

PEB visé A

Livraison prévue en septembre 2026

Prix affichés hors frais - Vente sous régime des droits d`enregistrement (12,5 %) sur le terrain, éligible à 3 % sous conditions, et de la TVA sur la construction (21 %)

Renseignements et visite : Alexandra au +32 472 27 03 42

Retrouvez toutes les informations sur ce projet sur notre site www.immoaplus.be

Les surfaces indiquées ne sont pas des surfaces habitables mais des surfaces brutes, selon le code de mesurage appliqué en Belgique
Publicité à caractère non contractuel et ne constituant pas une offre
Les propriétaires se réservent le droit de décision, d`acceptation ou non sur toute(s) offre(s) soumise(s) pour leur bien

Lire plus

Situation

  • Adresse : Tournai templeuve

En Vidéo

Détails

  • Ref : 6554761
  • Type : Maison
  • Prix : 290 000€
  • Chauffage : gaz (chau. centr.)
  • Chambre(s) : 3
  • Etat général : Neuf
  • Salle de bain : 1
  • Garage(s): 0 + 1
  • Cuisine : équipée

  • Habitation de 126.19m2
  • Terrain de 236m2
  • 3 façades

A proximité

Environnement

,

Commodités

Boutiques : oui

Transport en commun : -

Ecoles : -

Salle de Sport : -

Autoroute : oui

Orientation

De la terrasse : nord-ouest

Envoyer à un ami

*Aucune information n'est enregistrée sur ce formulaire

Agence mouscron

Je veux visiter

Je suis déjà propriétaire d'un bien
Je reconnais avoir pris connaissance de la  politique de confidentialité et des conditions de respect de la Vie Privée

Vos coups de coeur