Maison 3 chambres avec jardin et garageA vendre

Maison Tournai kain

305 000€

En quelques mots

Maison 3 chambres avec jardin et garage au cœur du village de Kain, à proximité de TournaiPrestations- Agencement : hall d’entrée, WC séparé avec lave-mains, séjour avec cuisine équipée ouverte. A l’étage, 3 chambres, salle de bain avec baignoire, douche, meuble vasque, miroir et WC, grenier accessible par une trappe- Espaces extérieurs : fondation de terrasse prête, jardin [..]
Maison 3 chambres avec jardin et garage au cœur du village de Kain, à proximité de Tournai

Prestations
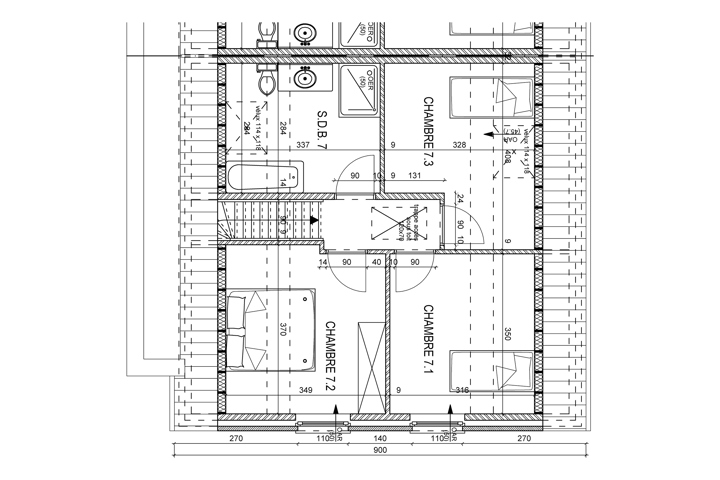
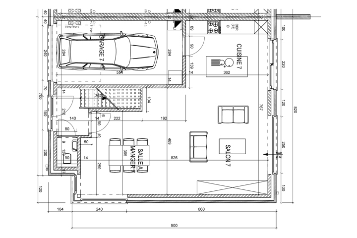
- Agencement
: hall d’entrée, WC séparé avec lave-mains, séjour avec cuisine équipée ouverte. A l’étage, 3 chambres, salle de bain avec baignoire, douche, meuble vasque, miroir et WC, grenier accessible par une trappe
- Espaces extérieurs : fondation de terrasse prête, jardin engazonné, devanture en pavés drainants
- Confort et commodités : garage avec porte sectionnelle motorisée, place de parking, citerne de récupération d’eau de pluie de 10.000 litres, pompe non comprise, tuyau Socarex placé et robinet extérieur

Finitions
- Menuiseries
: châssis PVC gris anthracite double vitrage et velux dans les chambres et la salle de bain, portes intérieures prêtes à peindre, seuils en pierre bleue, escalier en chêne
- Chauffage : chauffage central au gaz de ville, chaudière Vaillant, radiateurs
- Ventilation : VMC simple flux avec extraction dans les chambres
- Revêtements de sol : carrelage au choix avec plinthes assorties pour le rez-de-chaussée, la salle de bain et le hall de nuit à l’étage d`une valeur de 35€/m² HTVA, revêtement de sol des chambres en option, grès CERAM (30 x 30) d`une valeur de 20€/m² HTVA pour le garage

PEB visé : A

Livraison prévue à l`acte

Prix affichés hors frais - Vente sous régime des droits d`enregistrement (12,5 %) sur le terrain, éligible à 3 % sous conditions, et de la TVA sur la construction (21 %)

Renseignements et visite : Alexandra au +32 472 27 03 42

Retrouvez toutes les informations sur ce projet sur notre site www.immoaplus.be

Les surfaces indiquées ne sont pas des surfaces habitables mais des surfaces brutes, selon le code de mesurage appliqué en Belgique
Publicité à caractère non contractuel et ne constituant pas une offre
Les propriétaires se réservent le droit de décision, d`acceptation ou non sur toute(s) offre(s) soumise(s) pour leur bien
Lire plus

Situation

  • Adresse : Tournai kain

Détails

  • Ref : 7288453
  • Type : Maison/Villa
  • Prix : 305 000€
  • Chambre(s) : 3
  • Etat général : Neuf
  • Salle de bain : 1
  • Garage(s): + 1
  • Cuisine : équipée
  • Chauffage : gaz (chau. centr.)

  • Habitation de 139m2
  • Terrain de 287m2
  • 3 façades

A proximité

Environnement

calme,

Commodités

Boutiques : oui

Transport en commun : oui

Ecoles : oui

Salle de Sport : oui

Autoroute : -

Orientation

Du jardin : nord ouest

De la terrasse : nord-ouest

Envoyer à un ami

*Aucune information n'est enregistrée sur ce formulaire

  • DL Groupe - Tournai 069
  • +32 69 66 56 56
  • Boulevard du Roi Albert 44 - 7500 Tournai
Agence tournai

Je veux visiter

Je suis déjà propriétaire d'un bien
Je reconnais avoir pris connaissance de la  politique de confidentialité et des conditions de respect de la Vie Privée

Vos coups de coeur